- Living area
- About 121 mยฒ
- Plot area
- About 726 mยฒ
- Year built
- Built in 1993
- Number of rooms
- 7 rooms (4 bedrooms)
de locatie is zeer gunstig ten opzichte van de uitvalswegen n381 en a28, en de woning bevindt zich in een groene, kindvriendelijke wijk, op fietsafstand van het centrum van beilen. hier zijn tal van voorzieningen, zoals supermarkten, basisscholen, voortgezet onderwijs, (sport)verenigingen, een zwembad en een ns-station.
begane grond
de entree is in een ruime hal met garderobe, toilet en trapopgang. de l-vormige woonkamer (ca. 38 mยฒ) heeft een stijlvolle pvc vloer en profiteert van veel lichtinval door de erker aan de zijkant van de woning. door middel van een schuifpui is directe toegang vanuit de woonkamer naar de tuin mogelijk. de moderne halfopen keuken (ca. 12 mยฒ) is voorzien van een 4-pits kookplaat, oven, koelkast, afzuigkap en veel bergruimte en vanuit de dubbele openslaande deuren stap je zo op het terras en de tuin. vanuit de hal is er toegang tot een ruime werkkamer/slaapkamer (ca. 11 mยฒ).
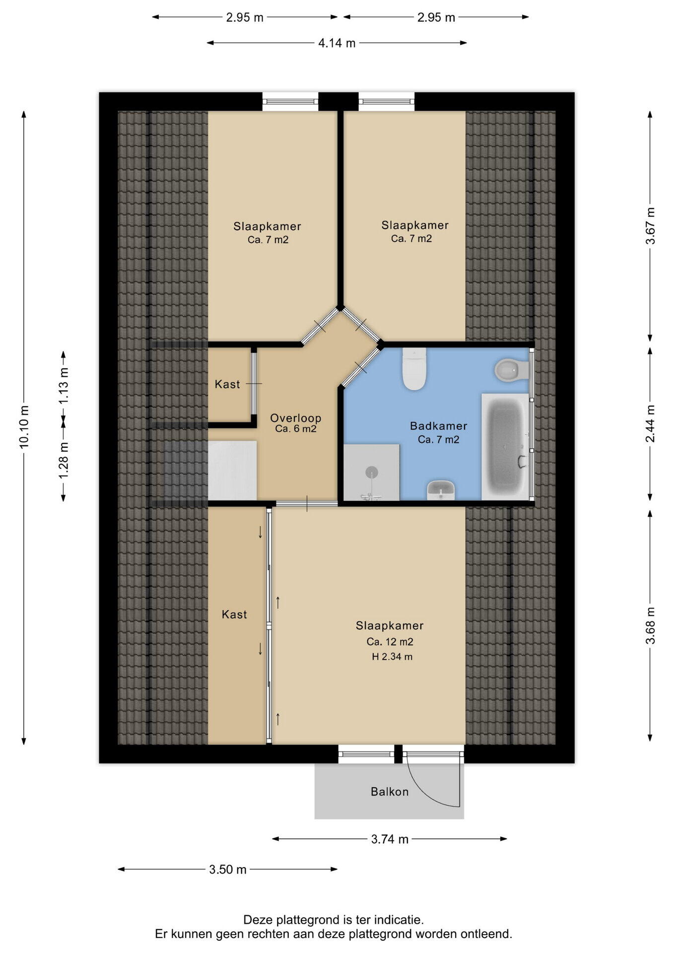
eerste verdieping
de overloop biedt toegang tot drie slaapkamers (ca. 12 mยฒ, ca. 7 mยฒ en ca. 7 mยฒ) en een ruime badkamer. deze nette badkamer is uitgerust met een ligbad met whirlpool, douche, bidet, toilet en een wastafelmeubel.
garage
de aangebouwde garage (ca. 19 mยฒ) is voorzien van een keurige betonvloer en beschikt over een elektrisch bedienbare garagedeur. er is een cv-ruimte/bijkeuken die vanuit de garage bereikbaar is. aan de achterzijde bevindt zich een royale berging (ca. 22 mยฒ) met openslaande deuren. het is eenvoudig om deze ruimte bij het woonoppervlak te betrekken door de ruimte van binnenuit te isoleren.
de garage is binnendoor te bereiken via de hal.
tuin
de tuin, gericht op het oosten, is keurig aangelegd en uitstekend onderhouden en biedt voldoende zon en schaduw plaatsen gedurende de dag. de gunstige ligging van de woning op het perceel zorgt voor een ruime achtertuin met voldoende privacy. de oprit biedt voldoende ruimte om meerdere auto's op eigen terrein te parkeren.
sterke punten en bijzonderheden
- ruime en uitstekend onderhouden woning met mogelijkheden voor het gehele woonprogramma op de begane grond.
- volledig geรฏsoleerd en voorzien van zonnepanelen.
- de vrijstaande woning ligt aan een rustige straat in een wijk met veel speelvoorzieningen.
- keurige keuken met openslaande tuindeuren.
- garage met ruime aangebouwde berging.
- nabij alle voorzieningen die beilen te bieden heeft.
Transfer
- Asking price
- โฌ 500,000 k.k.
- Status
- Sold
- Acceptance
- By arrangement
Construction
- Object type
- Single-family house, detached house
- Type of construction
- Existing construction
- Year built
- 1993
- Type of roof
- Saddle roof covered with tiles
Area and content
- Living area
- 121 mยฒ
- Plot area
- 726 mยฒ
- Content
- 563 mยณ
- Other indoor space
- 42 mยฒ
- External storage space
- 7 mยฒ
- Building built. outdoor space
- 2 mยฒ
Classification
- Number of rooms
- 7 rooms (4 bedrooms)
- Number of bathrooms
- 1 bathroom
- Bathroom facilities
- Bathtub, toilet, shower, bidet, sink, whirlpool
- Number of residential floors
- 2 floors
- Facilities
- Mechanical ventilation, TV cable, skylight, fiber optic cable, solar panels
Energy
- Energy label
- B
- Energy label registration
- 25-03-2025
- Isolatie
- Roof insulation, wall insulation, floor insulation, double glazing, fully insulated
- Heating
- Hot air heating
- Hot water
- Boiler
Outdoor space
- Location
- On a quiet road, in a residential area
- Garden
- Backyard, front yard, side yard
- Afmetingen achtertuin
- 314 mยฒ (16.5 meters deep and 19 meters wide)
- garden location
- Located on the east and accessible from the back
Storage
- Barn / storage room
- Attached stone
- Facilities
- Equipped with electricity
Garage
- Type of garage
- Attached stone
- Capacity
- 1 car
- Facilities
- Heating, electricity, running water, electric door
- Isolatie
- No insulation
Parking
- Type of parking facility
- On private property
Energy consumption in Beilen
Energy label this property
Energielabel B
Publishing energy label: 25-03-2025
Power consumption per year
(Average detached house in Beilen)
Gas consumption per year
(Average detached house in Beilen)
* Figures are from CBS and are intended as an indication and may vary for this property
Indication of mortgage costs
Own deposit:  
  Savings / surplus value  
Interest:  
  Lowest 10-year interest rate 
Lowest 10-year interest rate
2,71% - Centraal Beheer Groen... - NHG
3,02% - Centraal Beheer Groen... - 80%
Lowest 20-year interest rate
3,19% - Centraal Beheer Groen... - NHG
3,31% - Centraal Beheer Groen... - 80%
Lowest 30-year interest rate
3,34% - Centraal Beheer Groen... - NHG
3,47% - Centraal Beheer Groen... - 80%
Mortgage:
Gross monthly expenses: โฌ 0 p/m
Net monthly expenses: โฌ 0 p/m
How do we calculate this?
The interest rate is based on the lowest 10-annual fixed rate for one mortgage part. The interest rate listed (3.02% zonder NHG) was checked on 30-04-2025. This calculation is based on an annuity mortgage that is fully repaid, with monthly payments remaining the same throughout the term. Actual interest and net monthly payments may vary depending on your personal situation and the mortgage lender. Please consult a financial advisor for an accurate calculation and advice. No rights can be derived from this calculation; it serves only as an indication.
Documentation
Cadastral map
Living Environment
Visit our website
Viewing
Bid on this property
Valuation
Zoekopdracht
Download all
Viewing solar borders
On the map
Residents in Beilen
Cijfers voor postcodegebied 9412
- Total population
- 1220 inhabitants
- Men
- 50%
- Women
- 50%
Residents in Beilen
Cijfers voor postcodegebied 9412
- up to 15 years
- 12%
- 15 to 25 years
- 14%
- 25 to 35 years
- 15%
- 45 to 65 years
- 39%
- 65 and older
- 21%
Households in Beilen
Cijfers voor postcodegebied 9412
- Single without children
- 17%
- Multi-person without children
- 44%
- Households without children
- 61%
Households in Beilen
Cijfers voor postcodegebied 9412
- Households with one child
- 3%
- Households with multiple children
- 36%
- Households with children
- 39%
Homes in Beilen
Cijfers voor postcodegebied 9412
- Houses before 1945
- 1%
- Houses between 1945 and 1965
- 1%
- Houses between 1965 and 1975
- 1%
- Houses between 1975 and 1985
- 1%
- Houses between 1985 and 1995
- 60%
Homes in Beilen
Cijfers voor postcodegebied 9412
- Homes between 1995 and 2005
- 39%
- Homes between 2005 and 2015
- 1%
- Homes after 2015
- 1%
- Rental properties
- 10%
- Homes for sale
- 90%
Other in Beilen
Cijfers voor postcodegebied 9412
- Average WOZ value
- โฌ 258.000,-
- Persons under 65 with benefits
- 5%
Other in Beilen
Cijfers voor postcodegebied 9412
- Addresses per kmยฒ
- 453
- Urbanity (scale of 1 to 5)
- 20%
 
  
 Groenhout Makelaars
If you have any questions or would like to schedule a viewing, please use the form to the right. You will be contacted shortly thereafter.
Brink 4
9411 KR, Beilen
0593 23 21 21 midden-drenthe@groenhoutmakelaars.nl www.groenhoutmakelaars.nlDรฉ makelaar in Midden-Drenthe
Bij Groenhout Makelaars Midden-Drenthe staan we klaar om je te ondersteunen bij de verkoop van je huidige woning of de aankoop van je droomhuis. Onze diensten beperken zich niet tot Midden-Drenthe; we zijn ook actief in omliggende gemeentes. We hechten veel waarde aan flexibiliteit, dus afspraken zijn ook mogelijk in de avonduren en op zaterdagen. Dankzij zijn achtergrond in de financiรซle sector beschikt Richard over uitgebreide kennis op financieel gebied en hij is uiteraard op de hoogte van alle marktontwikkelingen. Als creatieve makelaars streven we ernaar om gestelde doelen op originele wijze te realiseren. We zijn gepassioneerd en gedreven in alles wat we doen, en we kennen de vastgoedsector door en door. Onze aanpak gaat verder dan de standaard kantooruren en omvat puur ondernemerschap. We richten ons niet alleen op zakelijke aspecten, maar ook op sociale elementen. We zijn alert op nieuwe trends en passen deze toe in onze werkwijze. Onze expertise staat garant voor jouw gemak.
Het is onze passie en ons sterke punt om uitdagingen aan te gaan en zo tot een optimale dienstverlening te komen, van begin tot eind en zelfs daarna! Neem eens een kijkje bij onze recensies; wellicht nodigt dit je uit voor een vrijblijvend gesprek?
 
 Latest reviews
-   Hoefslag 14Snelle en goede service, duidelijke communicatie. Makelaar neemt ruim de tijd voor bezichtingen en geeft na die tijd een duidelijke terugkop... 
-   Drijberseweg 36 a47They where very helpful in every way ๐๐๐๐๐๐๐๐๐๐๐๐๐๐๐๐๐๐๐๐๐๐๐๐๐๐๐๐๐๐๐๐๐๐๐๐๐๐๐๐๐๐๐๐๐๐๐๐๐๐๐... 
-   Westerstraat 18Het gehele traject met betrekking tot de verkoop van onze woning hebben wij als zeer prettig ervaren. De makelaar en collega's op kantoor re... 
 
  
  
  
  
  
  
  
  
  
  
  
  
  
  
  
  
  
  
  
  
  
  
  
  
  
  
  
  
  
  
  
  
  
  
  
  
  
  
  
  
  
  
  
  
  
  
  
  
  
  
  
  
  
  
  
  
  
  
  
 